facebook pixel
Iščete ali prodajate/oddajate nepremičnino? Vpišite tukaj
Prodaja

Sveti Jurij v Slovenskih goricah, Jurovski dol

Hiša149 m2651 m2
329.000 €

Osnovni podatki

  • Transakcija: Prodaja
  • Tip nepremičnine: Samostojna
  • Velikost: 149 m2
  • Zgrajeno: 2026
  • Št. spalnic 5
  • Št. kopalnic 2
  • Št. parkirišč 4
  • Šifra: PH419MŠ
  • Dodatno
    Parkirišče Asfaltirana dovozna cesta
  • Priključki
    Elektrika Voda Kanalizacija Optika
  • Ogrevanje
    Toplotna črpalka Talno gretje
  • Lega
    J Z JZ
  • Luksuz
    Lep razgled Bližina narave Zelo sončno Tip-top Živali dovoljene Mirna lokacija

Opis objekta

Pozdravljeni,

si predstavljate zaživeti v čisto novem naselju novih 23 hiš?  dvoetažna energetsko varčna hiša, 119,7m2    :)

KJE: Jurovski dol ob vsej potrebni infrastrukturi, le 5 minut vožnjedo mesta Lenart in do uvoza na avtocesto ter 10 minut mirne vožnje do mesta Maribor

OBJEKTIVNI PODATKI:

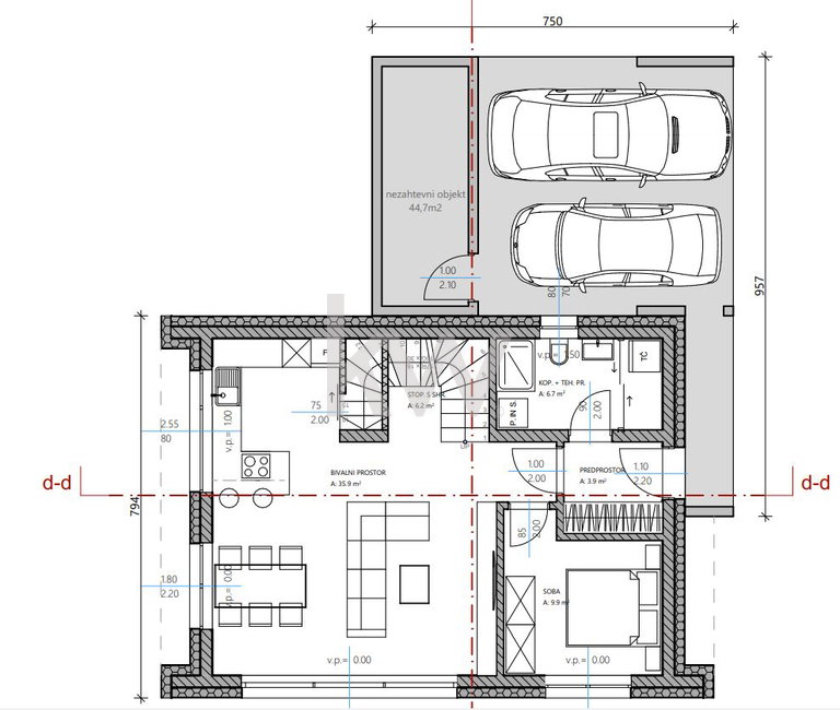
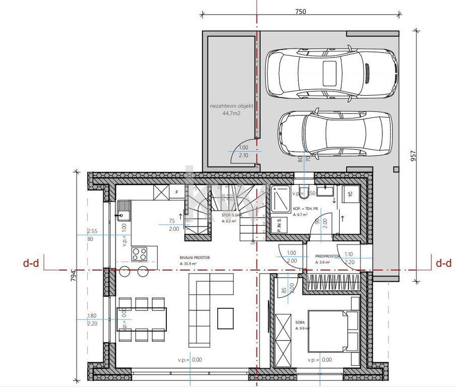
Pritličje zajema: predprostor 3,9 m2, tehnični prostor ali kopalnica 6,7m2, spalnica 9,9m2, dnevni prostor z izhodom na teraso 35,9m2, stopnišče s shrambo 6,2m2, skupaj pritličja 62,6m2

Mansarda zajema: stopnišče oziroma predsoba 8,3m2, kopalnica 8,6m2, otroška soba 1 v izmeri 13,3m2, otroška soba 2, otroška soba 3 v velikosti 13,3m2, skupaj mansarda v velikosti 57,1m2

TEHNIČNI PODATKI:

Talna plošča bo izvedena v skladu s projektom. Hiša bo zidana iz opeke Poroterm (30cm) etažnosti P+M.

Notranje stene:
  • nosilne stene opeka Poroterm (20cm)
  • predelne stene opeka Poroterm (11,5cm)
  • izvedba strojnega gips ometa debeline cca.1,5cm

Sestava zunanje stene:

  • fasada po sistemu Baumit (stiropor 15cm)
  • finalni sloj Baumit (barva po želji kupca)
  Napušč:
  • Kovinska pod konstrukcija
  • Stirodur plošče 20mm
  • Baumit zaključni sloj (barva po izbiri kupca)
  Streha:
  • opeka Tondach, črne barve
  • strešna konstrukcija bo smrekov les toplotna izolacija 30 cm TERVOL
  • dvokapnica
  • kleparski izdelki barvna pločevina
  • snegobrani
  • izvedba strelovoda
  Estrih:
  • pritličje 13cm toplotna izolacija, 2cm sistemska plošča in 6cm betonski estrih z mikroarmaturo
  • mansarda 6cm toplotna izolacija, 2cm sistemska plošča in 6cm betonski estrih z mikroarmaturo
  Okna- vrata:
  • okna PVC (troslojna zasteklitev-6 komorni profil) barva obojestransko bela AJM
  • lamelne zunanje žaluzije na ročni pogon (sive barve)
  • vhodna vrata ALU (bela) do vrednosti 1.900€ AJM
  • notranja vrata Lesna Slovenj Gradec CPL POLAR WEISS salon Maribor
  • zunanje in notranje okenske police iz naravnega kamna rosa beta
  • 1 x drsna vrata - izhod na teraso, ostalo navadna vrata
  Elektroinštalacije:
  • komplet z stikali in vtičnicami v beli barvi
  • v elektro omarici na parceli bo izvedeno in priključeno elektro odjemno mesto
  • v ceni ni predpriprave za klimo in električnih žaluzij
  Strojne inštalacije:
  • komplet odtoki, vodovod
  • ogrevanje toplotna črpalka (zrak-voda) 6KW vključno z bojlerjem (180l)
  • talno gretje
  • izvedba inštalacij za vodo na zunanjem delu hiše, klasična pipa
  • izvedba inštalacij za osvetlitev vhoda z vtičnico
  Opremljenost kopalnice:
  • vgrajen podometni WC splakovalnik Geberit (2 kom)
  Talne in stenske obloge:
  • izvedba keramike I.razred po izbiri kupca do vrednosti 20 €/m2
  • izvedba gotovega parketa ali vinil, I.razred, po izbiri naročnika (35 €/m2) s polaganjem
  Zunanje talne obloge:
  • izvedba plošč znamke Zobec kreativ črna na terasi
  • izvedba pločnika okrog hiše širine 80cm s položenimi ploščami Zobec kreativ črna
  Slikopleskarska dela:
  • 2x kitanje
  • 2x pleskanje bela barva
  Ureditev okolice:
  • poravnana parcela
  • nadstrešek ni vključen v ceno !!!
  • škarpe niso vključene v ceno !!!

V ceno je vključeno komunalno opremljeno zemljišče s projektno dokumentacijo in plačanimi vsemi komunalnimi prispevki (elektrika, vodovod)

Pomagamo vam urediti financiranje ali vam nudimo pomoč pri prodaji vaše nepremičnine

Lep pozdrav Marina

Vaš agent

Osnovni podatki

  • Transakcija: Prodaja
  • Vrsta nepremičnine: Hiša
  • Tip nepremičnine: Samostojna
  • Velikost (bruto): 149 m2
  • Zgrajeno: 2026
  • Parcela: 651 m2

Vaši podatki

Vaši podatki

Vaši podatki

Primerljive ponudbe