ZA VSE INFORMACIJE POKLIČITE 031641040.
Spoštovani,
v nakup vam lahko ponudimo zazidljivo zemljišče v skupni površini 1.261m2, z izdelano DGD dokumentacijo za stanovanjski dvojček z opornim zidom.
Zemljišče predstavlja tri parcelne enote, ki po lokacijski informaciji v celoti predstavljajo stavbno zemljišče.
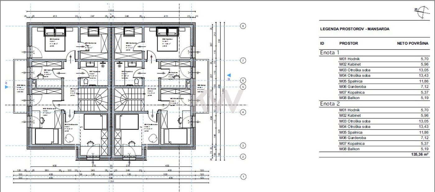
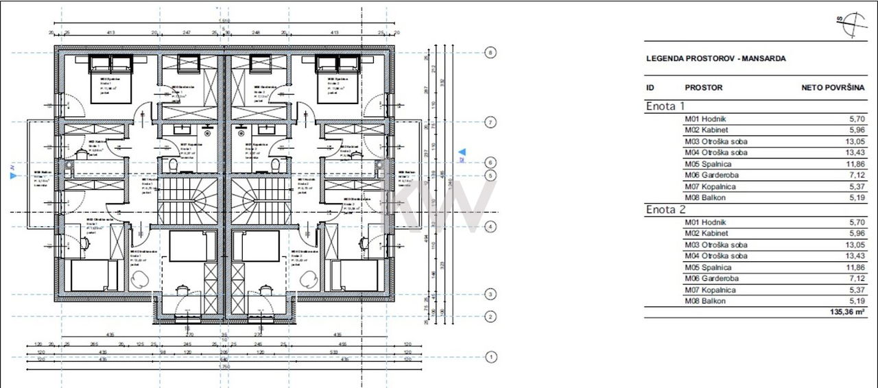
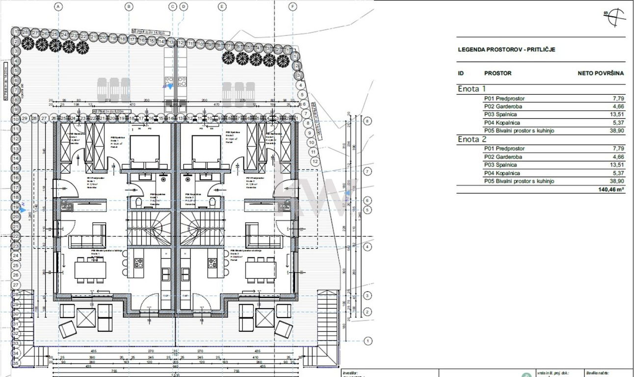
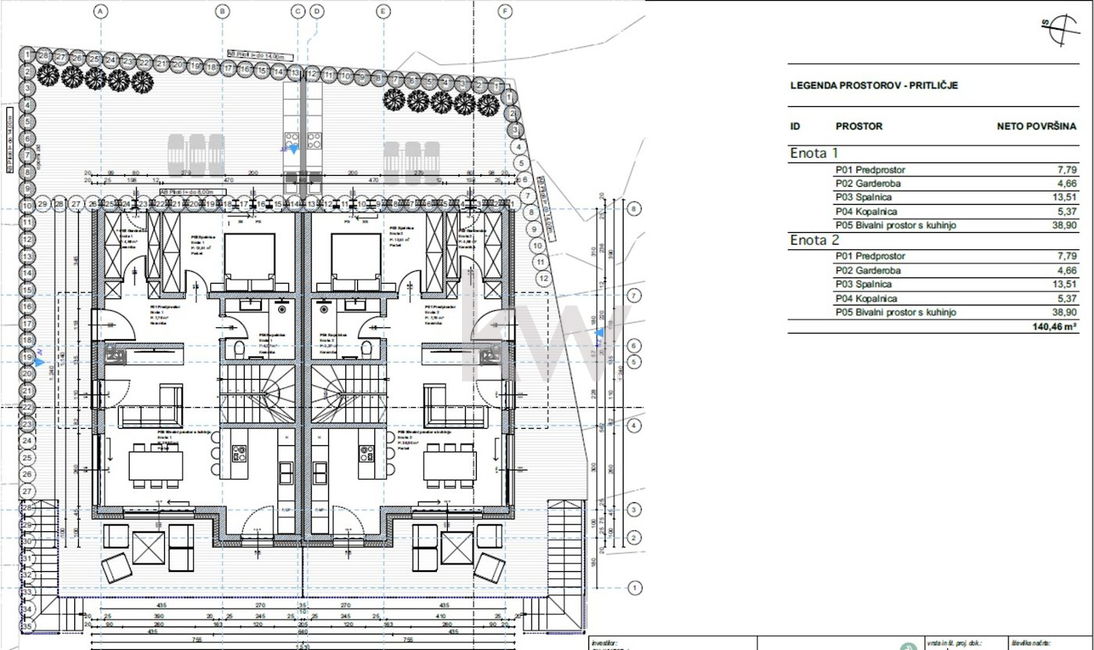
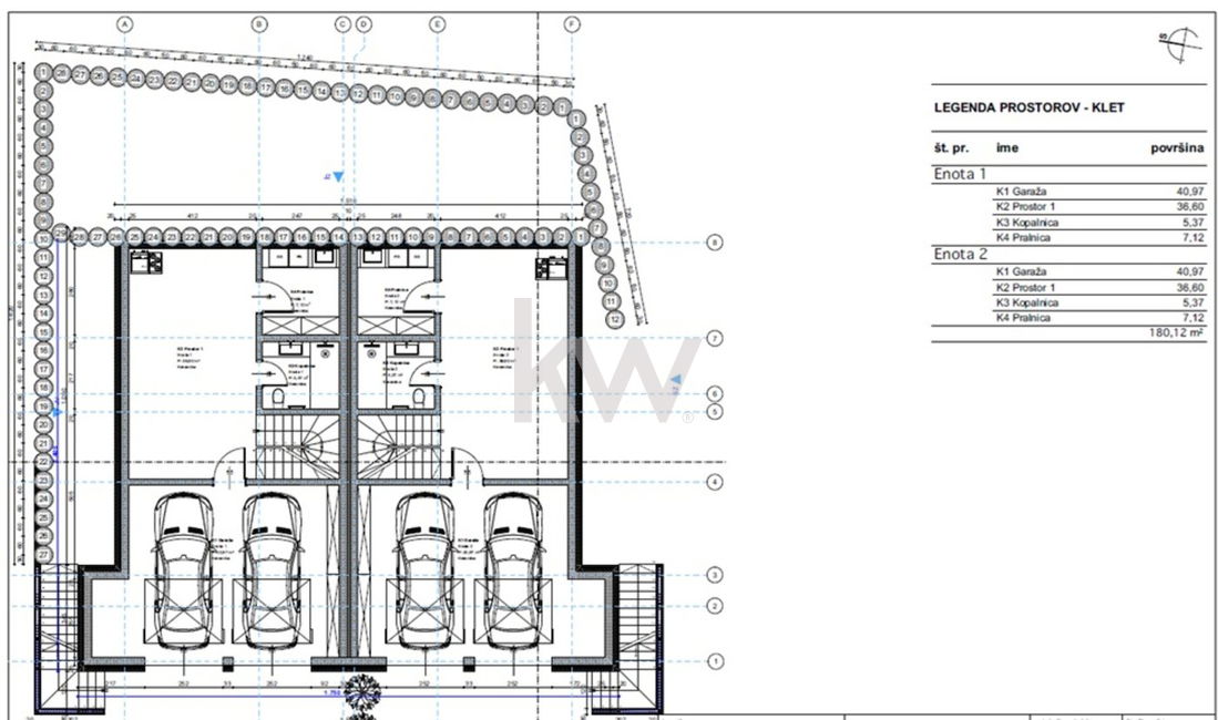
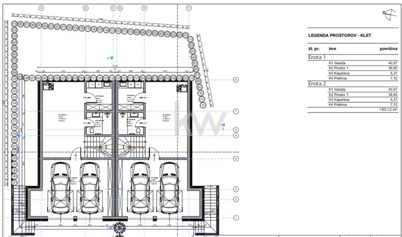
Predvidena je izgradnja stanovanjskega dvojčka etažnosti K+P+M v skupni bruto tlorisni površini 579,80m2 in oporni zid višine 6m, širine 0,6m in globine 8m. Skupna velikost gradbene parcele je 1.093m2.
Nahaja se na vrhunski lokaciji na Hudinji, v neposredni bližini vse infrastrukture in zgolj nekaj minut do avtocestnega priključka.
Privzdignjen teren zagotavlja lep razgled.
Dostop je predviden neposredno z javne ceste, plinovod in vodovod sta na parceli.
Za zemljišče je že izdelano geološko poročilo.
Za gradnjo dvojček hiše po projektu DGD je že izdana odločba o plačilu kom.prispevka za novogradnjo v znesku 25.542 Eur, ki še ni plačan.
ZEMLJIŠČE SE PRODAJA BREZ PLAČANEGA KOMUNALNEGA PRISPEVKA, KI GA BODOČI KUPEC PORAVNA SAM.
GRADBENO DOVOLJENJE ŠE NI PRIDOBLJENO!
Zemljiškoknjižno urejeno, nepremičnina pa je brez bremen.
Meje parcel po podatkih GURS niso urejene.
Kupec prevzame v plačilo sestavo prodajne pogodbe v znesku 305 EUR.
V kolikor morate pred nakupom prodati vašo nepremičnino bomo poskrbeli za prodajo po najvišji možni ceni in v najkrajšem možnem času. Keller Williams nepremičninska družba z več kot 45 agenti pokriva območje celotne Slovenije, po vsem svetu pa ima več kot 188.000 partnerjev.
Pomagamo vam tudi pri urejanju financiranja.
Še več naše ponudbe si lahko ogledate na www.kapitol.si in www.kwslovenia.com.
Lepo vas pozdravljamo in se veselimo srečanja z vami.
Objavljeni podatki so informativni. Možnost napak pri vnosu podatkov. Za napake v oglasu ne odgovarjamo

Nepremičninski agent