Pozdravljeni,
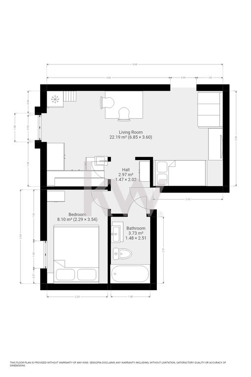
V Piranu na Punti prva vrsta je naprodaj 3-sobno dupleks stanovanje 82,5m2 s teraso (altana 9,3m2), ki se nahaja le 10m od plaže.
Stanovanje se nahaja na 3-4 nadstropju urejene večstanovanjske stavbe, zgrajene leta 1900. Parkirišče je v okolici z dovolilnico.
Kvadratura stanovanja je 73,2 m2, terasa 9,3m2
Izjemna priložnost!
Stanovanja na takšnih lokacijah so redkost. Poleg edinstvene lege ponuja tudi možnost uporabe dve ločeni enoti za oddajanje v turistične namene ali najem za daljše obdobje.
Razpored prostorov obsega:
3.nadstropje:
4.nadstropje:
Stanovanje je bilo leta 2022 delno obnovljeno – nova streha, narejena terasa (altana), nova okna in polkna, notranja vrata, elektro inštalacije.
Stanovanje je svetlo in nudi prijetno bivanje. Ogrevanje in hlajenje poteka s pomočjo klimatske naprave. Stanovanje se prodaja opremljeno.
Zemljiškoknjižno urejeno in vseljivo in prosto vseh bremen.
Lokacija nudi vse prednosti mestnega življenja, hkrati pa omogoča hiter pobeg v naravo in aktivno preživljanje prostega časa s športom in rekreacijo.
V kolikor morate pred nakupom prodati vašo nepremičnino bomo poskrbeli za prodajo po najvišji možni ceni in v najkrajšem možnem času. Keller Williams nepremičninska družba z več kot 50 agenti pokriva območje celotne Slovenije, po vsem svetu pa ima več kot 200.000 partnerjev.
Pomagamo vam tudi pri urejanju financiranja.
ZK stanje: urejeno
Pogoji nakupa: pogoj prodajalca je, da kupec ob sklenitvi pogodbe poravna vrednost davka na promet z nepremičnino v višini 2% od prodajne vrednosti + strošek sestave pogodbe v višini 200,00eur + DDV.
Še več naše ponudbe si lahko ogledate na www.kwslovenia.com.
Lepo vas pozdravljamo in se veselimo srečanja z vami.
Lep pozdrav,
Milivoj

Nepremičninski agent