Spoštovani,
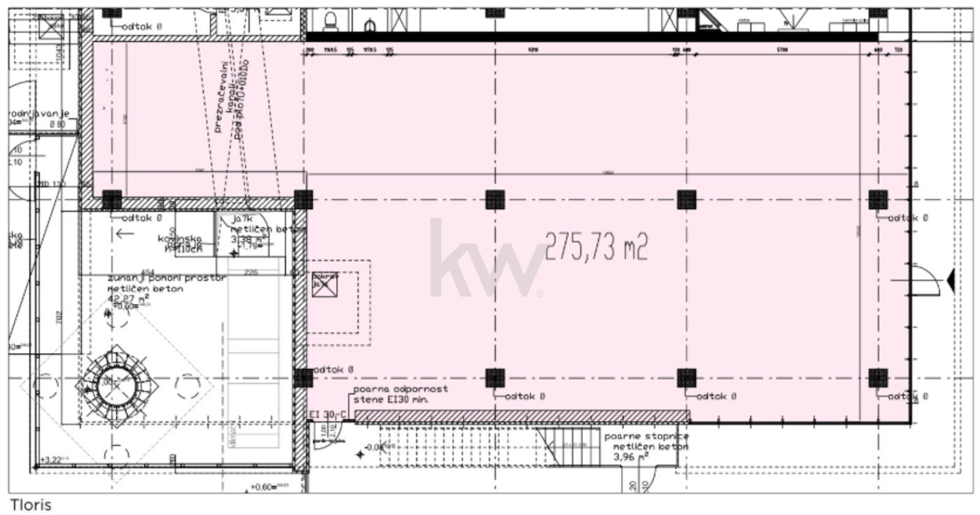
Na prodaj je večnamenski poslovni prostor v pritličju poslovno-trgovskega objekta Arena Petrol v Celju, na atraktivni lokaciji na Hudinji, v neposredni bližini Mercator centra, nogometnega stadiona Zdežele in športne dvorane Zlatorog. Prostor meri 279,80 m² po podatkih GURS in je v nedokončani fazi gradnje, kar kupcu omogoča popolno prilagoditev notranjosti glede na lastne potrebe, dejavnost in želje. Objekt je že vpisan v zemljiško knjigo, prostor pa je na voljo takoj.
Dostop do lokacije je enostaven in hiter, tako z Opekarniške kot Podjavorške ulice, neposredno povezan z Mariborsko cesto in hitro dostopen iz centra mesta ter avtocestnega priključka Celje-center. Parkirna mesta so na voljo v neposredni okolici objekta, nogometnega stadiona, športne dvorane in Mercator centra, kar dodatno povečuje privlačnost za obiskovalce in stranke.
Lokacija ponuja visoko frekvenco obiskovalcev zaradi prisotnosti športnih, trgovskih, gostinskih in storitvenih dejavnosti v neposredni bližini. Poslovno okolje je dobro razvito, območje pa omogoča tudi vidno zunanjo označbo in prisotnost v prostoru z visoko prometno izpostavljenostjo in frekvenco.
V kolikor morate pred nakupom prodati vašo nepremičnino bomo poskrbeli za prodajo po najvišji možni ceni in v najkrajšem možnem času. Keller Williams nepremičninska družba z več kot 45 agenti pokriva območje celotne Slovenije, po vsem svetu pa ima več kot 188.000 partnerjev.
Pomagamo vam tudi pri urejanju financiranja.
Še več naše ponudbe si lahko ogledate na www.kapitol.si in www.kwslovenia.com.
Lepo vas pozdravljamo in se veselimo srečanja z vami.
Objavljeni podatki so informativni. Možnost napak pri vnosu podatkov. Za napake v oglasu ne odgovarjamo

Nepremičninski agent