3-sobno stanovanje z balkonom v centru Kopra – mirna lokacija v Bazoviški ulici.
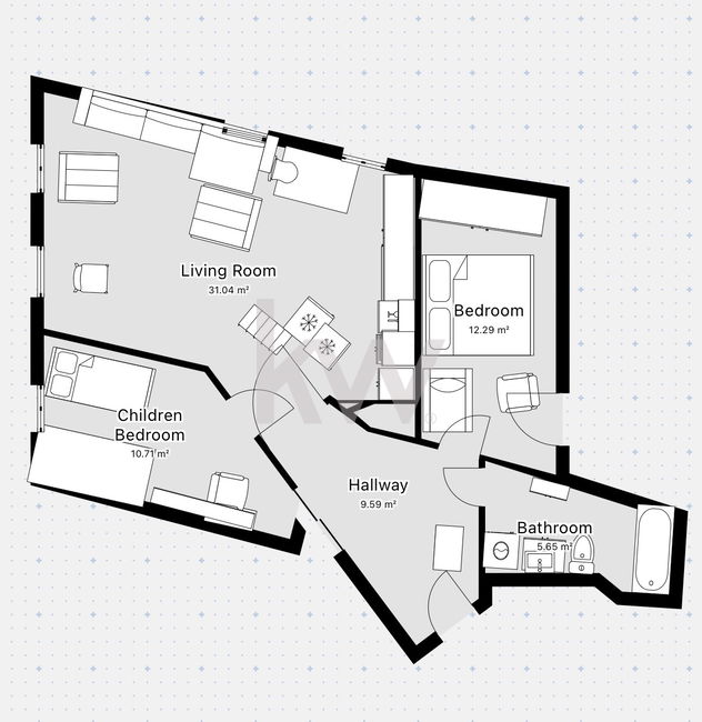
Na prodaj je prijetno in funkcionalno 3-sobno stanovanje v centru Kopra, v urejeni 8-stanovanjski hiši, zgrajeni leta 1994. Nahaja se v 1. nadstropju in je umaknjeno od glavnega prometa, v bližini Cankarjeve ulice – idealna kombinacija mestnega življenja in miru.
Stanovanje odlikuje odprt in svetel bivalni prostor, kjer so dnevna soba, jedilnica in kuhinja povezani v sodoben open-space koncept. Spalnica ima direkten izhod na balkon, prav tako tudi kopalnica s kadjo, kar daje stanovanju poseben občutek zračnosti in udobja. Balkon je v celoti opremljen s komarniki.
Na hodniku in v otroški sobi so vgrajene omare, ki zagotavljajo veliko prostora za shranjevanje. Stanovanju pripada tudi klet. Okna, polkna in vrata so lesena, originalna.
Stanovanje se prodaja prazno, brez opreme, kar omogoča novemu lastniku, da si ga uredi po lastnih željah. Vselitev je možna takoj.
Lastnosti:
- 3-sobno stanovanje
- prvo nadstropje
- balkon in klet
- novejša (letnik 1994) in manjša stavba (8 stanovanj)
- mirna lokacija v centru mesta
- ogrevanje klima Mitsubishi
- open-space dnevni prostor
- vgradne omare
- takoj vseljivo
- strošek za rezervni sklad 79 €
- pridobljeno gradbeno in uporabno dovoljenje
Pogoj prodajalca: kupec plača 2 % davek na promet nepremičnin in strošek odvetniške storitve 146€.
Odlična priložnost za udobno bivanje v samem srcu Kopra ali kot naložba za oddajanje.
Za ogled pokličite na 040/589-598 ali pišite na maja.marusic@kwslovenia.com
KW SLOVENIJA

Nepremičninska agentka