KOPER – CENTER PRI TITOVEM TRGU
Popolnoma obnovljeno 1,5-sobno stanovanje z lastniškim parkirnim mestom
Na eni najboljših lokacij v Kopru, tik ob Titovem trgu, je naprodaj popolnoma obnovljeno (2025) 1,5-sobno stanovanje v prvem nadstropju urejene stavbe.
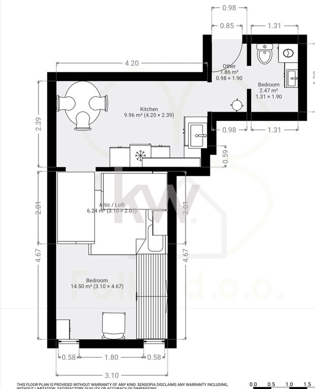
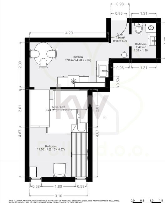
Velikost: 27.5 m² + galerija, skupno 35 m²
Razporeditev: dnevno-bivalni prostor z jedilnico, spalnica, manjša soba/kabinet, kopalnica
Prenova 2025: celovita adaptacija, vključno s hidroizolacijo in termoizolacijo
Lastniško parkirno mesto – redkost v centru
Ogrevanje/hlajenje: klimatska naprava
Polno opremljeno in takoj vseljivo
Odličen donos – stanovanje se uspešno oddaja prek Bookinga
Cena: 179.000 EUR
Prednosti lokacije
Neposredna bližina Titovega trga, promenade in mestnih znamenitosti
Vsa infrastruktura na dosegu roke (vrtec, šola, trgovine, avtobusna postaja)
Hiter dostop do avtoceste
Stanovanje je odlična priložnost za stalno bivanje, počitniški oddih ali investicijo z zanesljivim donosom.
Pogoj prodajalca je, da kupec poravna 2% davek na promet z nepremičninami ter strošek odvetniške storitve.
Za ogled in ostale informacije pokličite na 040589598 ali pišite na maja.marusic@kwslovenia.com
KW Slovenia - Keller Williams Slovenia

Nepremičninska agentka