OSNOVNE ZNAČILNOSTI:
Prodamo sončno zemljišče z izdanim pravnomočnim gradbenim dovoljenjem in plačanim komunalnim prispevkom za luksuzno enodružinsko hišo v treh etažah, ki ima v zgornji etaži predviden protitočni plavalni masažni bazen s fitnesom, savno in dvema terasama. Pridobljena vsa soglasja in projekti. Možen prevzem in začetek gradnje.
- Velikost zemljišča:
o 411 m2 – osnovna gradbena parcela
o Dodatnih 86 m2 (1/3 solastnine zemljišča 258 m2)
- Pravna ureditev: Nepremičnina je geodetsko urejena (urejene meje tudi z mejniki) in zemljiško knjižno urejena. Brez bremen v lasti prodajalca.
- Lokacija: Nahaja se v mirnem in urejenem predelu Novo Polje, le 3 minute od obvoznice in v bližini centra Ljubljane. Dostop je zagotovljen po novi asfaltirani občinski cesti (asfaltirana 2024) z urejenim odvodnjavanjem meteorne vode in javno razsvetljavo.
- Zemljišče je pripravljeno za gradnjo:
o Pridobljeno pravnomočno gradbeno dovoljenje (GD) – na razpolago sta dva GD.
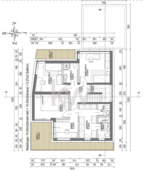
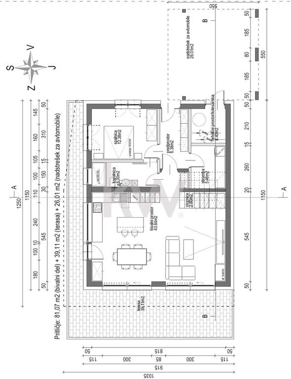
o Uporabna površina enostanovanjske hiše z GD:
- hiša pravokotne oblike - eno GD - 308.73 m2 oziroma 200 m2 po odštetju balkonov, teras in nadstreška.
- hiša v obliki črke L - drugo GD - 296m2 m2 oziroma 192 m2 po odštetju teras in garaže za dva avta, ki sta v sklopu stavbe.
o PZI (projekt za izvedbo) je v zaključni fazi.
o Plačan komunalni prispevek v višini cca 29.000,00 €.
PARCELE s površino in delež lastništva, ki se prodajajo skupaj:
parcela 297/25 k.o. 1772 Slape (ID 7163758) v velikosti 411 m2, v lastništvu 1/1.
parcela 297/24 k.o. 1772 Slape (ID 4660923) v velikosti 258 cm2, v lastništvu 1/3 - predstavlja parcelo po severni in zahodni strani parcele 29/25 in v naravi predstavlja pot.
INFRASTRUTURA in PRIKLJUČKI NA PARCELI ter ostalo
ŽE IZVEDENO NA PARCELI:
Na zemljišču so že izvedeni vsi priključki, kar pomeni prihranek časa in denarja ob začetku gradnje:
Kanalizacijski jašek – na novo izpeljan cevovod iz ceste na parcelo in nov jašek na osnov uradnega projekta.
Vodovodni jašek s števcem – na novo izpeljan cevovod iz ceste na parcelo in nov jašek na osnovi uradnega projekta.
Električni priključek – na novo izpeljan cevovod iz obstoječe elektro omarice na parcelo na osnovi soglasja Elektro Slovenije.
Telekomunikacijski priključki – za Telekom, Telemach, T2, tako za optiko kot kabelsko.
Ponikovalnica globine 3 m, premera 100 cm – nova.
Na južni strani že izvedena brušena betonska moderna Žurbijeva ograja, ki je v lasti parc. št. 297/25.
PRIDOBLJENI PROJEKTI, DOVOLJENJA IN SOGLASJA:
Pravnomočno GD (gradbeno dovoljenje) pridobljeno. V zaključni fazi je PZI (projekt za izvedbo) in popis gradbenih del. Pridobljena soglasja za postavitev ograje okrog parcele, na J delu je že narejena moderna Žurbijeva ograja, ki je v lastni te parcele. Podrobno o ograjah: Na J strani je moderna ograja iz brušenega betona od Žurbi. Na ostalih straneh so v okviru gradbenega dovoljenja pridobljena soglasja za postavitev ograje na mejo zemljišča do višine 1,8m.
Pridobljeno dovoljenje za izvedbo geosonde oziroma izvedbo vrtin, možen je tudi priključek na plin.
Za zemljišče sta pridobljeni DVE GRADBENI DOVOLJENJI, zato kupec lahko izbira med njima:
Prva možnost: hiša v obliki črke L, z že izdelanimi 3D vizualizacijami zunanjosti in notranjosti oziroma renderji
Druga možnost: pravokotna zasnova hiše, z drugačno umestitvijo na zemljišču, večjo zelenico, pokritimi parkirišči nad nastreškom in drugačen uvoz na parcelo. V tem primeru postavitve hiše je več zelenice pred bivalnim delom. Za obe varianti so na voljo tlorisi. Vizualizacija in renderji zunanjosti in notranjosti so narejeni za prvo možnost. Etažnost pri obeh hišah je P + 1 + 2 (T) ; pritlična etaža + prva etaža + druga etaža (terasna etaža). Objekt ima v drugem etaži predvidene prostore za sprostitev: bazen s fitnesom, teraso in savno.
PROJEKT ZA IZVEDBO (PZI) NATANČNO IZDELAN V DEJTAJLE JE V ZAKLJUČNI FAZI - če se ne želite ukvarjati z detajli, imate vse na dlani:
V PZI je podrobno definirano, kot npr.: ogrevanje, hlajenje, pametne inštalacije GIRA, prezračevanje, namakalni sistem, razsvetljave v hiši in zunaj s definirano postavitvijo svetil in tipi svetilk, zunanja ureditev tako z rastlinami kot tlakovanjem, dvoriščna ograja z osebnim prehodom z domofonom in ostalo. Predviden je bazen s protitočnim sistemom, ki vključuje tudi naprave za razgibavanje in sistem za rehabilitacijo ter masažo. V PZI je skoraj že vse definirano, tako da če se ne želite ukvarjati z detajli, imate že to na dlani.
PREDNOSTI LOKACIJE IN INFRASTRUKTURA:
Blizu centra Ljubljane, BTC in vse potrebne infrastrukture.
Le 3 minute vožnje do obvoznice.
Mirna, zelene okolica, idealna za ljubitelje miru in rekreacije ter z neposredno bližino Krajinskega parka Zajčja dobrava.
Zemljišče se nahaja v eni izmed ulic Novo Polje v naselju Zadobrova, in v istem naselju gradi svojo vilo tudi košarkaš Luka Dončić.
Vsa infrastruktura v bližini: vrtec, šola, trgovina, pošta, lekarna, zdravstveni dom, železniška in avtobusna postaja, športna igrišča, igrišče za otroke, knjižnica, banka, itd. Na tem območju ni nikjer rek, ki bi lahko poplavljale in tudi cestno odvodnjavanje je na novo urejeno v letu 2024 kot tudi nova občinska cesta in javna razsvetljava.
Vljudno vabljeni na ogled parcele, kjer vam bomo podrobneje predstavili oba projekta, kajti pridobljena sta dva gradbena dovoljenja, in sicer za gradnjo hiše v pravokotni obliki ali hišo v obliki črke L.

Nepremičninski agent