Prodaja: Obnovljena hiša v Malih Braslovčah ob Savinji.
V Malih Braslovčah vam ponujamo čudovito manjšo hišo-vikend, ki združuje udobje, funkcionalnost in stik z naravo.
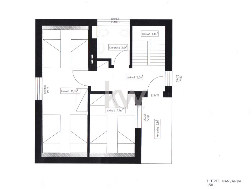
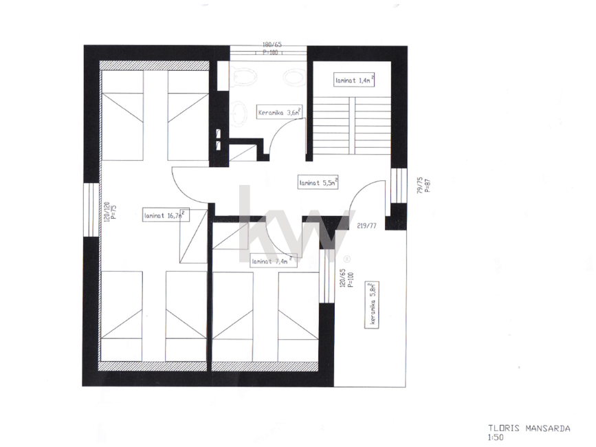
Hiša je obnovljena in pripravljena za takojšnje vselitev. V visokem pritličju se ponaša s svetlim dnevno bivalnim prostorom z izhodom na sončno teraso. V tej taži je še kopalnica z WC. Vse 3 etaže so povezane z notranjim stopniščem. V kletno etažo, ki je delno vkopana je neposreden zunanji dostop do garaže. Mansarda ima večjo sobo in manjši kabinet ter sanitarije. Prijetna terasa nudi lepe poglede na okolico.
Leta 2020 je potekala temeljita obnova - inštalacije, stavbno pohištvo, kopalnice, tla, fasada, izolacija,..Streha je bila obnovljena 2013 z opečno kritino. Ogrevanje je kombinirano z kaminsko pečjo, klimo in IR paneli (daljinska regulacija). Fasada, streha in strop kleti so izolirani.
Hiša je na območju kjer se izvajajo večji protipoplavni ukrepi. Leta 2023 je bila hiša poplavljena.
Hiša je opremljena in takoj vseljiva. Izdano je gradbeno in uporabno dovoljenje, parcela je geodetsko urejena.
Navduši tudi prostorna ravna parcela z zelenico in sadnim drevjem. Lokacija je idealna za ljubitelje narave.
Hiša je primerna tako za družinsko bivanje kot tudi za oddih od mestnega vrveža, hkrati pa ohranja odlično povezanost z lokalno infrastrukturo.
Spremljajte www.kapitol.si, kjer najprej objavimo nepremičnine v prihodu!
Za več informacij in prijave na dan odprtih vrat pišite na janko.parfant@kwslovenia.com.
Ekskluzivno pri Kapitol powered by Keller Williams!

Nepremičninski agent