V novograjenem poslovno stanovanjskem objektu TRŽAŠKA LIVING predstavljamo ekskluzivno priložnost za nakup stanovanja. Objekt, ki bo dokončan v marcu 2027, je zasnovan v skladu z visokimi bivanjskimi standardi. Na voljo sta le še dve enoti.
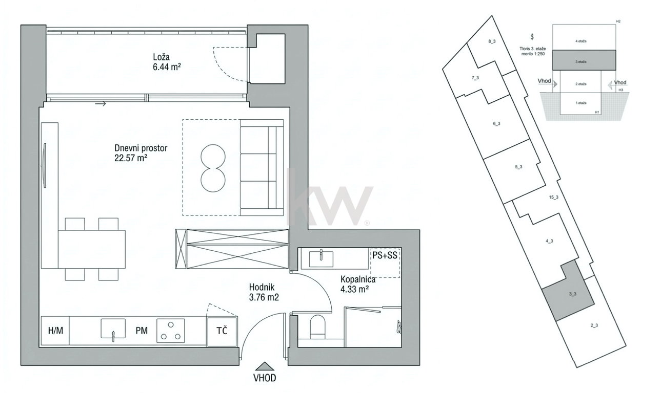
Predmetna garsonjera S3 se nahaja v 1. nadstropju in je orientirana proti JZ. Obsega spalno-bivalni prostor s kuhinjo in jedilnico, kopalnico ter ložo. Stanovanju pripada še prostorna shramba v kleti ter eno pokrito parkirno mesto.
Poslovno stanovanjski objekt obsega klet, pritličje in dve etaži. V kleti objekta so predvidene shrambe ter kolesarnica, v kateri je za vsako stanovanje točno določeno mesto za dve kolesi. V kleti je predviden tudi prostor za hrambo otroških vozičkov ter tehnični prostor, ki bo namenjen opremi za redno vzdrževanje objekta (kosilnica, metle, lopate, orodje za razna popravila, itd.).
V pritličju objekta bo vhod v objekt ter nadkrita parkirna mesta, ki bodo pripadala posameznim stanovanjem. V prvem in drugem nadstropju so predvidena stanovanja. Etaže povezuje dvoramno stopnišče in dvigalo.
Poslovno stanovanjski objekt je preudarno načrtovan z izbranimi materiali in z upoštevanjem visokih zahtev glede energetske učinkovitosti, ki bo dosežena s kakovostnim toplotnim ovojem stavbe, z okni s kvalitetno troslojno izolativno zasteklitvijo ter prezračevanjem z rekuperacijo, ki vrača toploto odpadnega zraka in s tem zmanjšuje potrebno količino toplote za ogrevanje.
Vsako stanovanje ima svojo toplotno črpalko za ogrevanje in pripravo tople vode ter predpripravo za klimatsko napravo. V vseh stanovanjih je predvideno talno gretje.
Fasada objekta bo izvedena kot kombinacija kontaktne fasade s tankoslojnim ometom ter prezračevane aluminijaste fasade. Debelina toplotne izolacije fasade bo 20 cm.
Okna so aluminijske izvedbe s trojno izolativno zasteklitvijo z ustreznimi karakteristikami glede toplotne prehodnosti. Za senčenje so predvidene zunanje žaluzije.
Predelne stene v stanovanjih bodo izvedene iz mavčno kartonskih plošč. Vrata v stanovanja bodo protivlomne izvedbe, z ustrezno protihrupno ter požarno zaščito ter možnostjo izvedbe alarmnega sistema. Vsa notranja vrata v stanovanjih bodo suho montažna, furnirana, z lesenimi podboji. Vrata so višine 220 cm.
V stanovanjih je predviden hrastov troslojni parket debeline 1,4 cm, v sanitarnih prostorih pa keramika.
Vsako parkirno mesto, ki pripada posamezni stanovanjski enoti, bo imelo predpripravo za električno polnilnico.
Oglaševana cena vključuje 9,5% DDV.
Za več informacij me kontaktirajte: agentka Tamara Gostiša, Tel.: +386 40 807 890
E-pošta: tamara.gostisa@kwslovenia.com

Nepremičninska agentka