V urejenem naselju Zali Rovt v Tržiču prodamo enoto hiše dvojček, ki obsega pritličje, nadstropje in mansardo. Nahaja se na zemljišču velikosti 204,00 m2. Orientirana je proti vzhodu, zahodu in severu. Na zemljišču se nahaja nadstrešek za avto ter priročna lopa za vrtno orodje / kolesarnica.
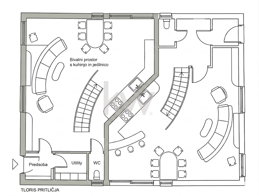
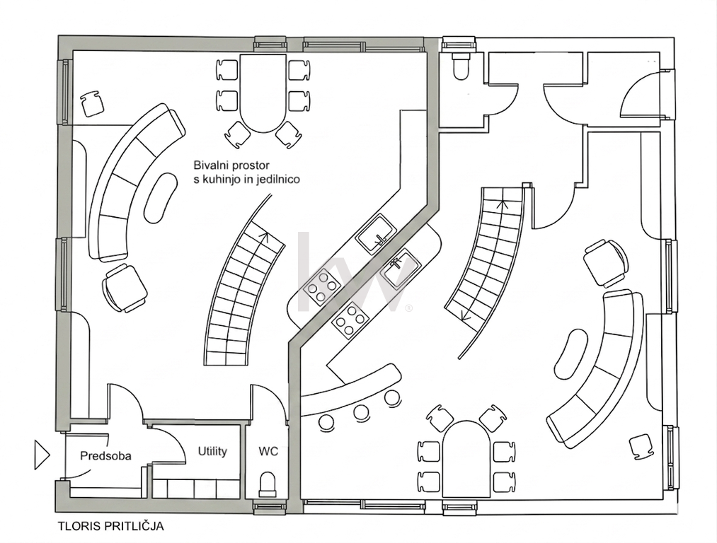
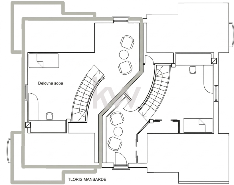
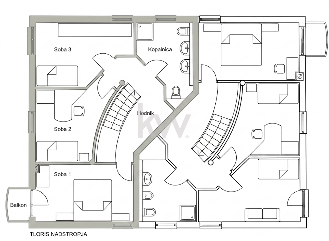
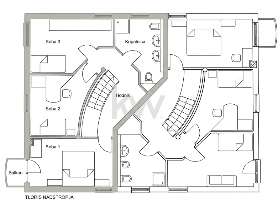
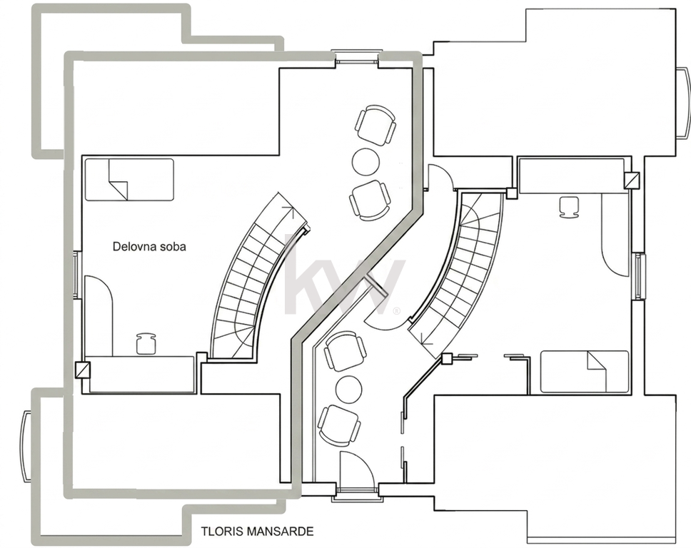
Tloris hiše v pritličju obsega predsobo, tehnični prostor / utility, dnevni WC ter bivalni prostor s kuhinjo in jedilnico z izhodom v tlakovan atrij. V nadstropju se nahaja kopalnica s prho ter tri sobe, od katerih ima ena lasten balkon. Mansarda predstavlja dodaten odprt bivalni prostor – delovno sobo, ki jo je možno pregraditi v dve sobi.
Ogrevanje je urejeno s toplotno črpalko (talno ogrevanje v pritličju in nadstropju), v dnevni sobi je tudi kamin na drva ter klima. Mansarda je ogrevana z IR paneli. Hiša ima vse priključke (elektrika, voda, kanalizacija, internet – optika ter dodatno tudi plin).
Hiša se prodaja delno opremljena. Vseljivo po dogovoru.
Pogoj prodaje: kupec poleg dogovorjene kupnine plača 2% davek na promet z nepremičninami.
Za več informacij in ogled me kontaktirajte: agentka Tamara Gostiša, Tel.: +386 40 807 890
E-pošta: tamara.gostisa@kwslovenia.com

Nepremičninska agentka