V Trnovlju pri Celju posredujemo pri ekskluzivni prodaji enote dvojčka A2 – sodobno zasnovane hiše, ki ponuja lepo kombinacijo mirne lokacije, funkcionalne razporeditve in bližine Celja.
Hiša je primerna za družino ali par, ki si želi več prostora, svoj vrtni del, garažo, dodatno parkirno mesto in dom, ki ga bo mogoče dokončati po lastnih željah.
Gre za etažnot P+1, v 3. podaljšani gradbeni fazi.
Zemljišče: 244 m²
Skupna površina: 164,70 m²
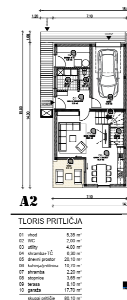
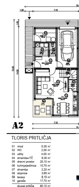
Pritličje: 80,10 m²
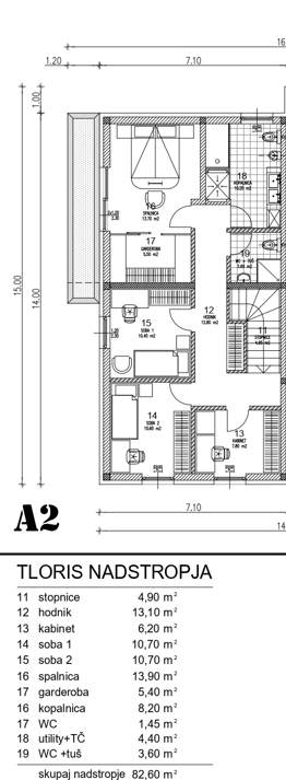
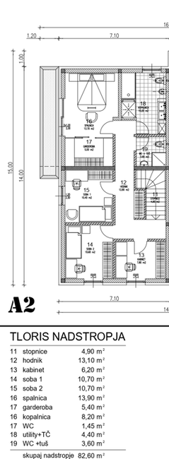
Nadstropje: 82,60 m²
Predvidoma bodo dela do te gradbene faze zaključena do konca maja. Zunanja ureditev bo urejena z vsemi priključki in asfaltom.
Razporeditev prostorov
Pritličje – 80,10 m²:
Nadstropje – 82,60 m²:
Razporeditev je zelo uporabna – pritličje je namenjeno bivanju, druženju in praktičnim pomožnim prostorom, nadstropje pa mirnemu spalnemu delu. Posebej prijetna je spalnica z walk-in garderobo, dodatna soba pa je lahko otroška soba, kabinet ali prostor za goste.
Lastnosti
Lokacija
Zakaj izbrati prav ta dom?
Ker ponuja lepo ravnovesje med mirno lokacijo, funkcionalno razporeditvijo in bližino Celja – dom, kjer imate dovolj prostora, zasebnosti in hkrati vse pomembno hitro pri roki.
Prodaja poteka v sodelovanju z agencijo CAPO D'ISTRIA nepremičnine d.o.o.
Za več informacij ali ogled me kontaktirajte – z veseljem vam predstavim enoto dvojčka osebno.
V kolikor morate pred nakupom prodati vašo nepremičnino bomo poskrbeli za prodajo po najvišji možni ceni in v najkrajšem možnem času. Keller Williams nepremičninska družba z več kot 40 agenti pokriva območje celotne Slovenije, po vsem svetu pa ima več kot 188.000 partnerjev.
Vredno ogleda in nakupa!

Nepremičninska agentka