Spoštovani,
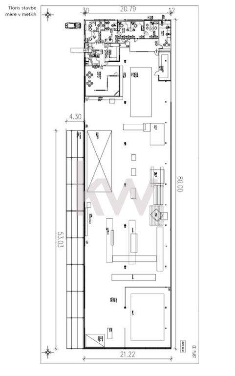
V prodaji je poslovno-proizvodni objekt CE-PLAST, ki se nahaja v urejeni industrijski coni na lokaciji bivše tovarne Emo Celje, na Bežigrajski cesti v Celju. Objekt se nahaja v dinamičnem industrijskem okolju, v neposredni bližini različnih tovarn, trgovskih središč in gostinskih lokalov, kot je Citycenter Celje. CE-PLAST obsega približno 200 m² sodobno urejenih pisarniških prostorov, ki vključujejo sedem pisarn, sanitarije, čajno kuhinjo ter večji razstavni salon, kar omogoča optimalno podporo poslovni in upravni dejavnosti. Osrednji del nepremičnine predstavlja 1.480 m² proizvodno-skladiščnega prostora, ki je primeren za različne proizvodne ali logistične dejavnosti.
Objektu pripada tudi približno 250 m² pokrite nadstrešnice z regali, kar dodatno povečuje uporabnost skladiščnih kapacitet. Na voljo je 20 zunanjih parkirnih mest, objekt pa omogoča enostaven dostop za tovorna vozila.
Ogrevanje hale je urejeno na plin, kar omogoča učinkovito in ekonomično ogrevanje tudi v zimskem obdobju
Lokacija omogoča hiter dostop do vseh večjih prometnic, saj je objekt dobro povezan tako s centrom mesta kot z avtocestnimi povezavami in glavnimi prometnimi vpadnicami iz smeri Mariborske ceste, Dečkovega naselja, Trnovelj, Lave ali Teharij. Objekt CE-PLAST predstavlja funkcionalno in strateško umeščeno nepremičnino, ki je idealna za podjetja z raznolikimi poslovnimi potrebami.
V kolikor morate pred nakupom prodati vašo nepremičnino bomo poskrbeli za prodajo po najvišji možni ceni in v najkrajšem možnem času. Keller Williams nepremičninska družba z več kot 45 agenti pokriva območje celotne Slovenije, po vsem svetu pa ima več kot 188.000 partnerjev.
Pomagamo vam tudi pri urejanju financiranja.
Še več naše ponudbe si lahko ogledate na www.kapitol.si in www.kwslovenia.com.
Lepo vas pozdravljamo in se veselimo srečanja z vami.
Objavljeni podatki so informativni. Možnost napak pri vnosu podatkov. Za napake v oglasu ne odgovarjamo

Nepremičninski agent