PRODAJA ZEMLJIŠČA Z GRADBENO DOVOLJENJEM – LUCIJA, OB MORJU
Na izjemni lokaciji v Luciji, le nekaj minut od morja, prodamo zazidljivo zemljišče velikosti 443 m² z že pravnomočnim gradbenim dovoljenjem za moderno večnamensko stavbo.
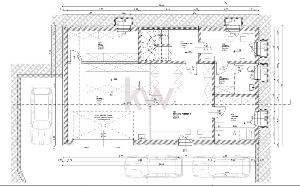
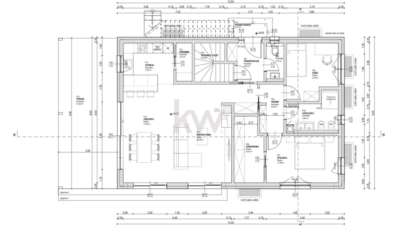
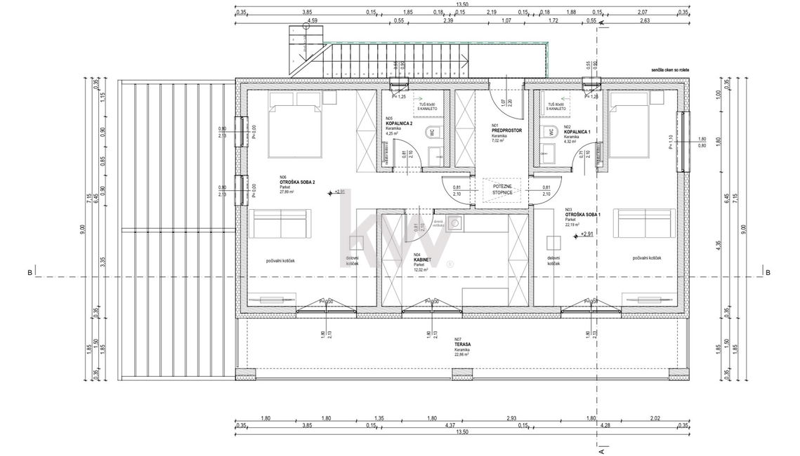
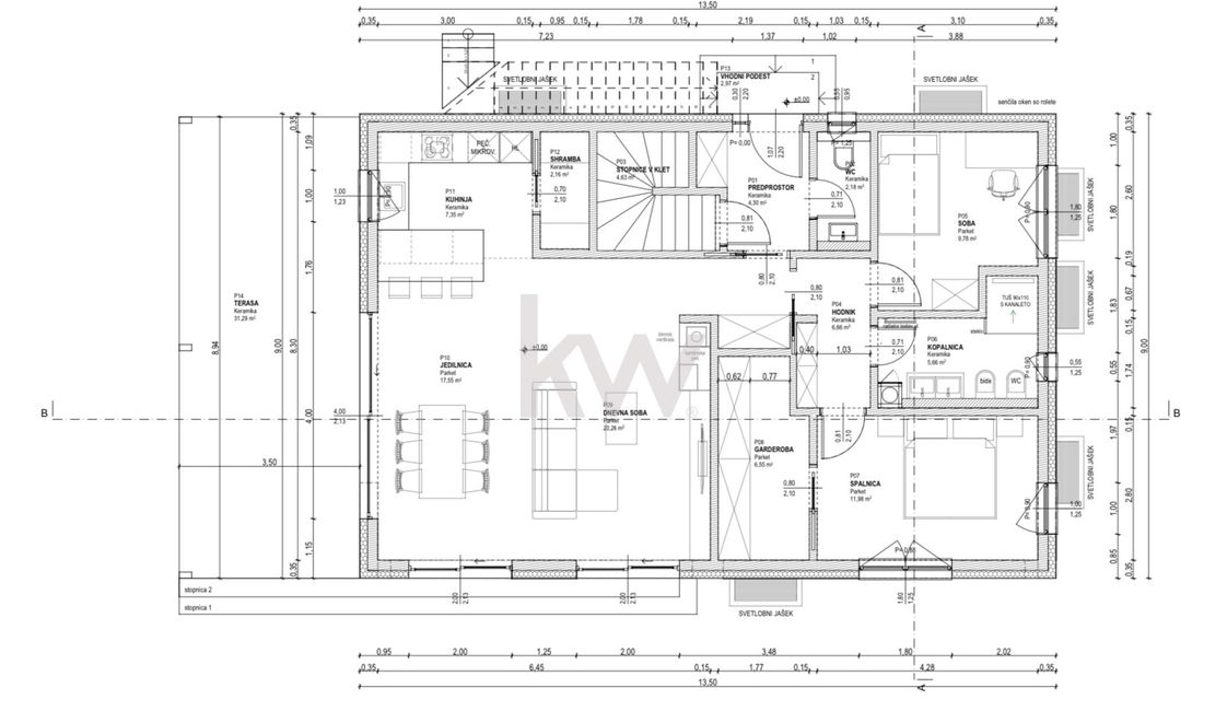
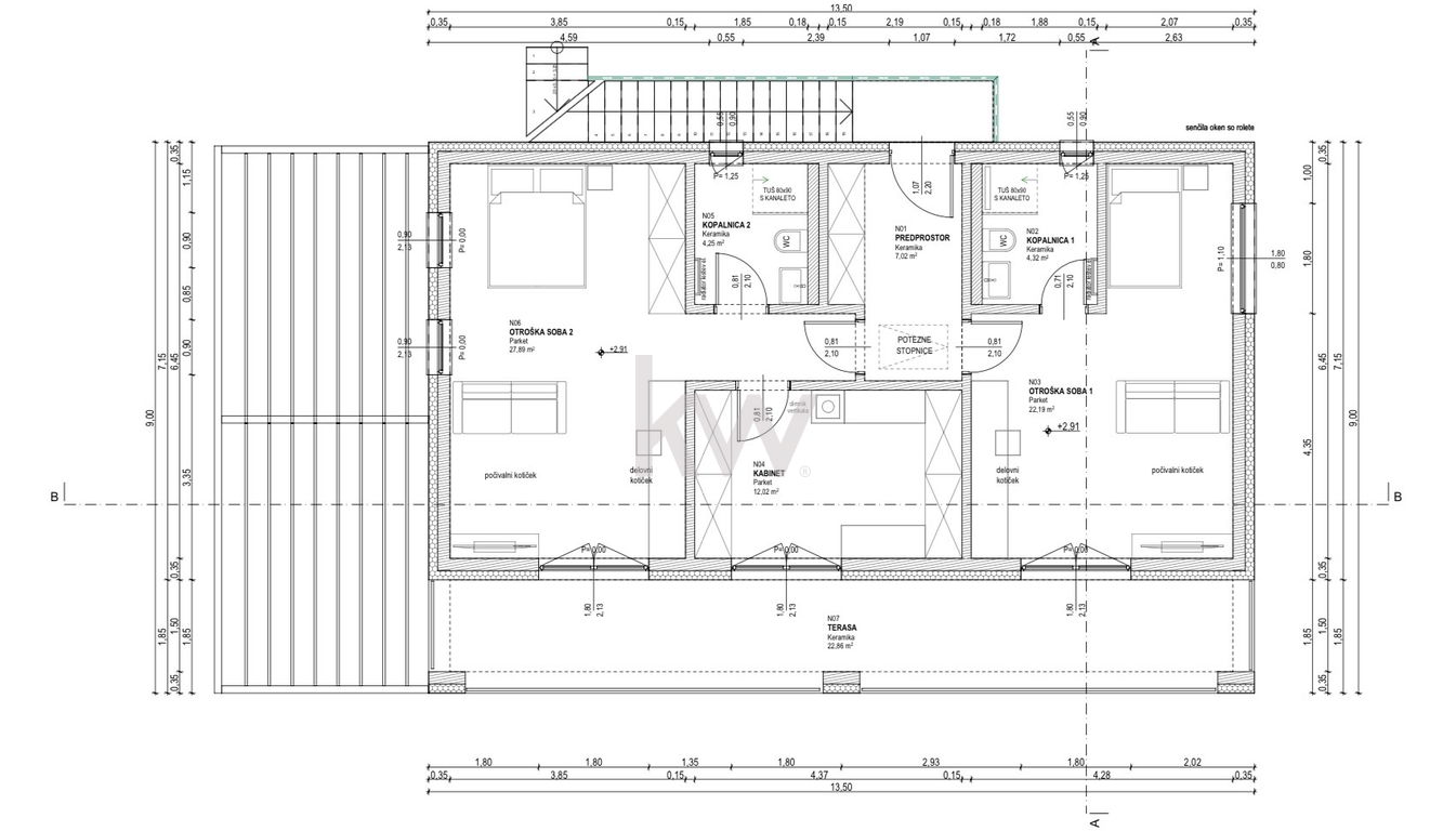
Predvidena stavba obsega 3 etaže:
Pritličje/klet: servisni prostori, idealni za poslovno dejavnost (pisarna, studio, delavnica ipd.)
1. in 2. nadstropje: dve stanovanjski etaži z možnostjo prilagoditve tlorisa
Neto površina stavbe: 288 m²
Bruto površina stavbe: 348 m²
Pravnomočno gradbeno dovoljenje
Možnost takojšnjega začetka gradnje
Mirna in urejena okolica v bližini morja
Odlična priložnost za investicijo ali lastno uporabo (kombinacija poslovnih prostorov in bivanja)
Cena: 260.000 €
(Cena vključuje zemljišče in pridobljeno gradbeno dovoljenje)
Kupec ob nakupu prevzame strošek 2% od prodajne cene.
Za več informacij nas pokličite na 040 615 614. KW Slovenia
| Morje |

Nepremičninska agentka