Dodaten opis nepremičnine:
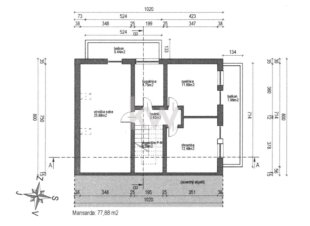
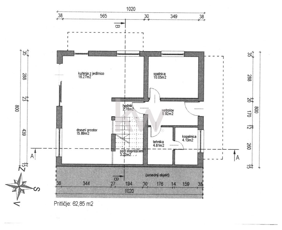
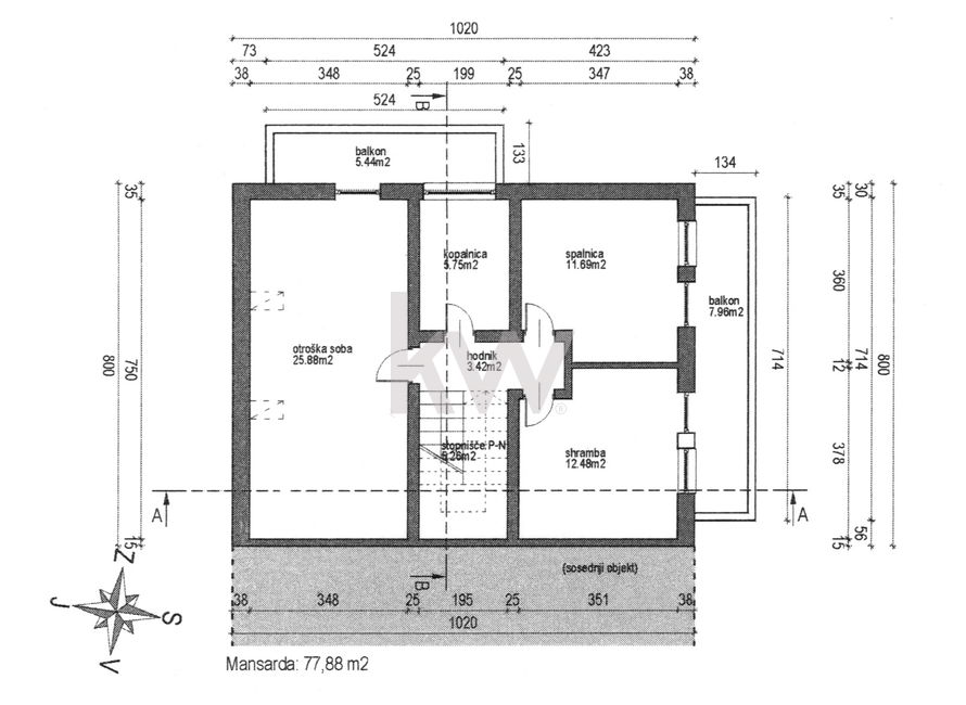
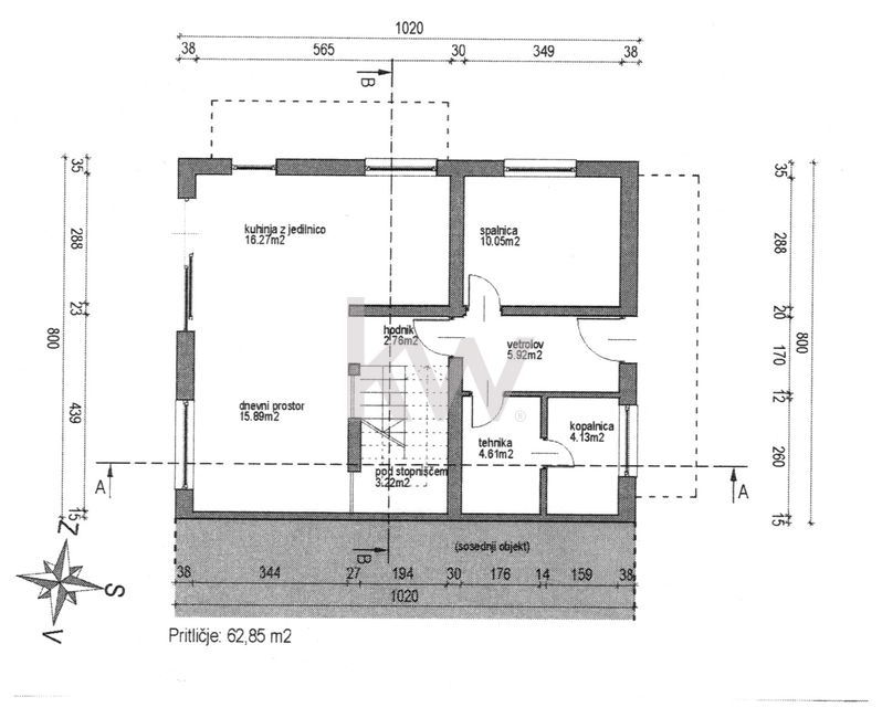
Prodamo enoto dvojčka 169,7m2 bruto površine z vrtom v naselju Moste pri Komendi, ki se nahaja na odlični mirni lokaciji v bližini vse infrastrukture. Objekt je kvalitetne klasične gradnje, pripada mu 219 m2 zemljišča. Enota je etažnosti P+1+M, razdeljena na pritlični bivalni del z izhodom na vrt, spalni del v nadstropju z 2 balkonoma ter svetlo urejeno mansardo. Vsako nadstropje ima svojo klimatsko napravo, v pritličju in kopalnici, v nadstropju je talno gretje. Možno je parkirati 2 vozili pod nadstreškom in 1 pred vhodom.
OSNOVNE ZNAČILNOSTI
RAZPOREDITEV SOB
PRITLIČJE:
NADSTROPJE:
MANSARDA:
POVRŠINA
OPREMA
PRIKLJUČKI
LOKACIJA IN INFRASTRUKTURA
Objekt se nahaja v mirnem in urejenem naselju Moste pri Komendi. V bližini se nahaja vsa potrebna infrastruktura za udobno in sproščeno bivanje. V okolici je veliko zelenih površin, ki omogočajo preživljanje prostega časa v naravi. Zagotovljen je hiter dostop do avtoceste in letališča Brnik.

Nepremičninski agent